05 25 35 75 63
7 chemin de la grave - 33520 Bruges

Bordeaux Caudéran, appartement deux pièces avec terrasse, box double et cave!


< Retour

Partager sur

gallery loader
Bien vendu Exclusivité

Appartement 50 m2 - 2 Pièces - Bordeaux Nous consulter


Description de l'offre Ref 354


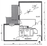
EXCLUSIVITE - VENDU - , Bordeaux Caudéran, à vendre, appartement de deux pièces principales avec terrasse. Au sein d'une petite copropriété tout juste ravalée, sécurisée et bien entretenue, cet appartement deux pièces très lumineux aura tout pour vous séduire. Il se décompose comme suit: Entrée avec placard, séjour, cuisine, dégagement permettant l'accès à la partie nuit, une chambre, une salle de bains, toilette indépendant. L'ensemble des pièces de l'appartement offre un accès direct sur la terrasse! Un box double ainsi qu'une cave viennent compléter ce bien. L'appartement se situe à quelques minutes à pied des arrêts de bus. La situation géographique, le calme et la luminosité sauront vous séduire! Un vrai coup de coeur pour cet appartement. Date de réalisation du diagnostic énergétique: 01/03/2019 A propos de la copropriété: Nombre de lots principaux: 53 Charges annuelles: 1153€

Diagnostics de performance énergétique


DPE
DPE
DPE en cours

Descriptif du bien


Code postal 33200


Surface habitable (m²) 50 m²


Surface loi Carrez (m²) 49,59 m²


Nombre de chambre(s) 1


Nombre de pièces 2


Etage 2


Ascenseur OUI


Vue Dégagée


Nb de salle de bains 1


Cuisine SEPAREE


Type de cuisine SEMI-EQUIPEE


Interphone OUI


Balcon NON


Terrasse OUI


Nombre de garage 2


Cave OUI


Surface cave (m²) 2.16


Exposition SUD-OUEST


Année de construction 1992


Quartier Caudéran


Copropriété OUI


Lot n° 219


nombre de lots 53


Quote Part annuelle des charges 1 153,51 €


plan de sauvegarde NON


statut du syndic pas de procédure en cours


Charges 96 €


Taxe foncière annuelle 1 179 €


Cette annonce vous intéresse ?


* Champs obligatoires

* : Les informations recueillies sur ce formulaire sont enregistrées dans un fichier informatisé par La Boite Immo agissant comme Sous-traitant du traitement pour la gestion de la clientèle/prospects de l'Agence / du Réseau qui reste Responsable du Traitement de vos Données personnelles.
La base légale du traitement repose sur l’intérêt légitime de l'Agence / du Réseau.
Elles sont conservées jusqu'à demande de suppression et sont destinées à l'Agence / au Réseau.
Conformément à la loi « informatique et libertés », vous pouvez exercer votre droit d'accès aux données vous concernant et les faire rectifier en contactant l'Agence / le Réseau.
Si vous estimez, après avoir contacté l'Agence / le Réseau, que vos droits « Informatique et Libertés » ne sont pas respectés, vous pouvez adresser une réclamation à la CNIL.
Nous vous informons de l’existence de la liste d'opposition au démarchage téléphonique « Bloctel », sur laquelle vous pouvez vous inscrire ici : https://www.bloctel.gouv.fr 
Dans le cadre de la protection des Données personnelles, nous vous invitons à ne pas inscrire de Données sensibles dans le champ de saisie libre
Ce site est protégé par reCAPTCHA, les Politiques de Confidentialité et les Conditions d'Utilisation de Google s'appliquent.

autres annonces immobilières correspondant à votre recherche

Les biens similaires pour : Vente Appartement Bordeaux (33200)