Be Immo Agence
Vendu

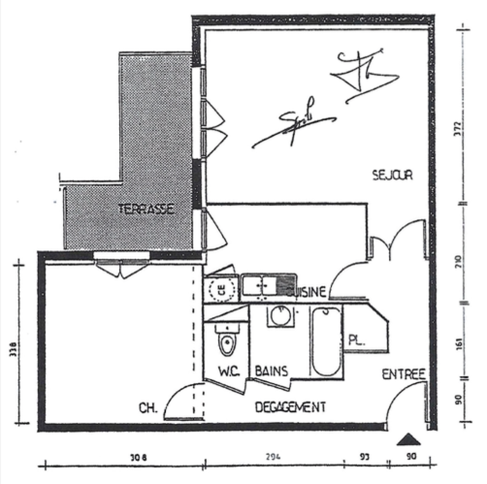
Appartement 2 pièce(s) 1 chambre(s) 50 m²

Bordeaux (33200)
Nous consulter Référence 354

A propos de ce bien

EXCLUSIVITE - VENDU -

, Bordeaux Caudéran, à vendre, appartement de deux pièces principales avec terrasse.

Au sein d'une petite copropriété tout juste ravalée, sécurisée et bien entretenue, cet appartement deux pièces très lumineux aura tout pour vous séduire.

Il se décompose comme suit: Entrée avec placard, séjour, cuisine, dégagement permettant l'accès à la partie nuit, une chambre, une salle de bains, toilette indépendant.

L'ensemble des pièces de l'appartement offre un accès direct sur la terrasse!

Un box double ainsi qu'une cave viennent compléter ce bien.


L'appartement se situe à quelques minutes à pied des arrêts de bus.

La situation géographique, le calme et la luminosité sauront vous séduire! Un vrai coup de coeur pour cet appartement.


Date de réalisation du diagnostic énergétique: 01/03/2019

A propos de la copropriété: Nombre de lots principaux: 53 Charges annuelles: 1153€

Caractéristiques de ce bien

  • Surface 50 m²
  • carrez 49,59 m²
  • séjour 19 m²
  • 1 chambre(s)
  • 1 salle(s) de bain
  • construit en 1992
  • cuisine séparée (semi-équipée)
  • 2 garage(s)
  • exposition Sud-Ouest
  • 2ème étage
  • 2 étage(s)
  • ascenseur
  • vue Dégagée
  • cave
  • terrasse
  • interphone
  • quartier Caudéran

Diagnostics énergétiques

DPE
GES
DPE en cours

Informations financières

Charges 96 €
Taxe foncière annuelle 1 179 €

Informations de copropriété

Copropriété Oui
Lot n° 219
Nombre de lots 53
Quote part annuelle des charges 1 153,51 €
Plan de sauvegarde Non
Statut du syndic Pas de procédure en cours

Autour du bien

  • Commerces et santé
  • Loisirs
  • Ecoles
  • Transports
  • Pratique

Calcul des mensualités

* Champs obligatoires